Чтобы получить консультацию, узнать цены, позвоните по единому бесплатному номеру 8-800-250-49-45 (круглосуточно), напишите нам на info@nwc-g.com или закажите обратный звонок и мы перезвоним в удобное для Вас время.

используется с целью распределения потока дождевых стоков, поступающих на очистку. Их проектируют и изготавливают таким образом, что при небольших расходах весь объем стоков поступал на очистку. При больших расходах часть сточных вод, условно чистого, уходит по обводной линии без очистки на сброс. Применение этого типа камер обеспечивает снижение производительности очистных сооружений, а, следовательно, и их стоимость.
В камере НВК-РК расположена перегородка расчетной высоты, обеспечивающая разделение потока.

это колодец смешения потоков с необходимым количеством патрубков (с очистных сооружений, с обводной линии и отводящий патрубок).

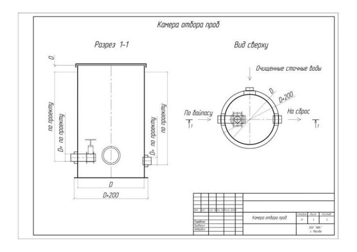
предназначены для снятия проб очищенных стоков после очистных сооружений для проведения анализа качества очищения стоков, которые далее идут на сброс. Оснащаются дисковым затвором.

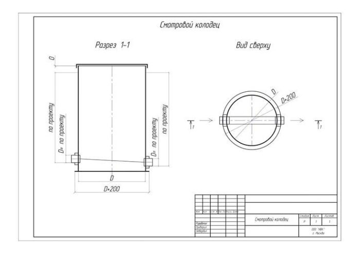
применяются для обеспечения доступа к подземным коммуникациям.

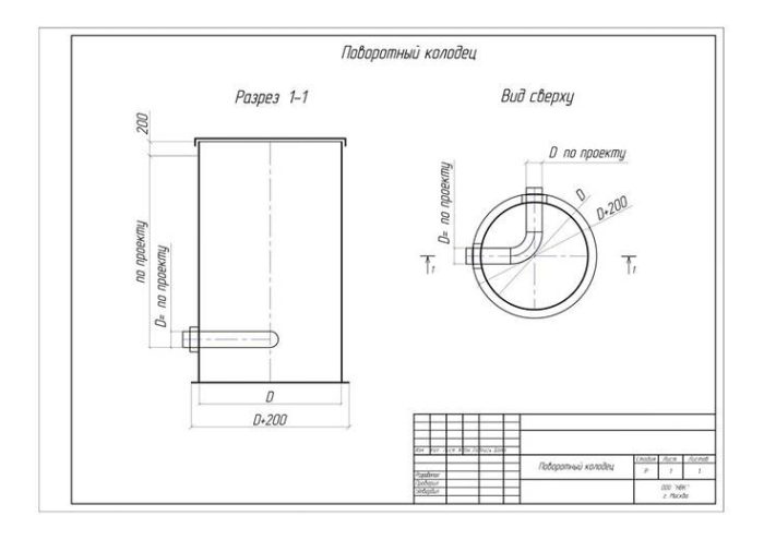
используются, когда угол поворота на канализационной магистрали, или в местах присоединения, разделения сети канализации больше 45°.

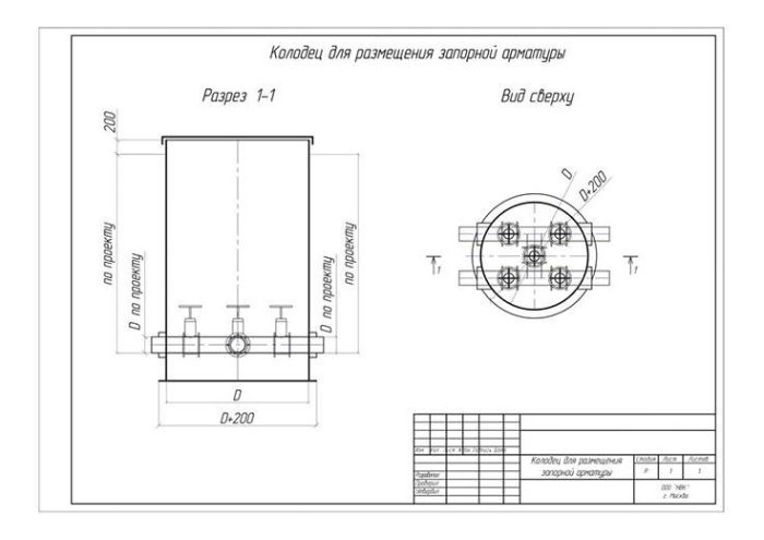
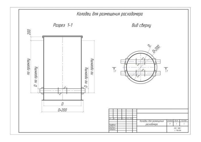
а также расходомеров, манометров и т.д.

Такая камера ставится на сетях канализации для установки средств измерения. Колодцы изготавливаются любых размеров по вашему проекту. Расходомеры используются для канализации: электромагнитные, ультразвуковые и радарные.
В случае угрозы затопления арматуры внутри насосных станций, рекомендуется применение этого типа колодцев. Кроме такого, колодец обеспечивает более удобное техническое обслуживание.
Диаметры колодцев изготавливаемых на основе емкостей из стеклопластика:
ООО “Национальная Водная Компания” является заводом производителем и предлагает приобрести оборудование без переплаты. Наши специалисты сделают расчет в соответствии со всеми действующими нормами. Мы готовы разработать под Ваши требования индивидуальный проект станций.
Чтобы получить консультацию, узнать цены, позвоните по единому бесплатному номеру 8-800-250-49-45 (круглосуточно), напишите нам на info@nwc-g.com или закажите обратный звонок и мы перезвоним в удобное для Вас время.
Скачайте и заполните опросный лист, отправьте его на почту info@nwc-g.com.
Если у вас возникли трудности или вы не хотите заполнять опросный лист, свяжитесь с нами любым удобным для вас способом, мы обработаем Вашу заявку в кратчайшие сроки!
Необходимы при техническом обслуживании бытовых, ливневых, общесплавных систем. С помощью этого оборудования возможен доступ к сточным водам, измерительной и запорно-регулирующей арматуре.